Huis
€ 385.000 (In optie)

Geneinde 160, 2260 Westerlo
    • delen

Omschrijving Ref.: 7636688

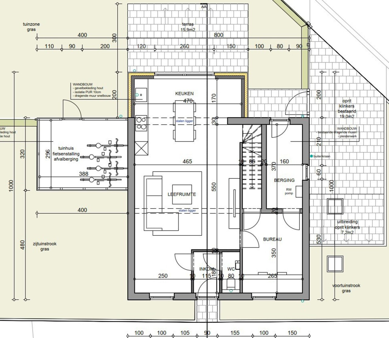
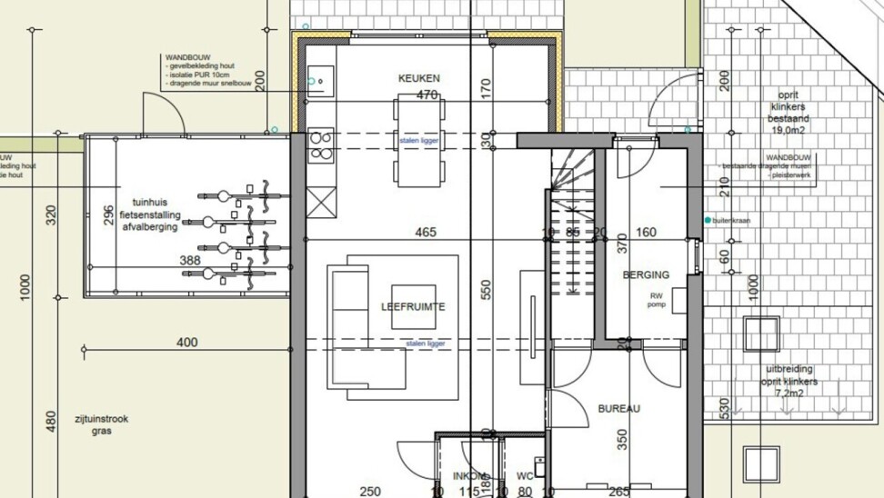
Gerenoveerde woning op ca. 341m²


Ligging: Gelegen tussen Voortkapel en Tongerlo (Westerlo). Zeer goede verbinding naar omliggende gemeentes en vlot bereikbaar via E313 , scholen, winkels, openbaar vervoer, horeca, .... in de nabije omgeving.

Omschrijving: Deze instapklare woning combineert comfort, functionaliteit en een aangename lichtinval. Op het gelijkvloers bevindt zich een ruime leefruimte met een open en volledig uitgeruste keuken. Daarnaast zijn er een praktische berging/wasplaats en een aparte bureauruimte, ideaal voor thuiswerk of hobby.

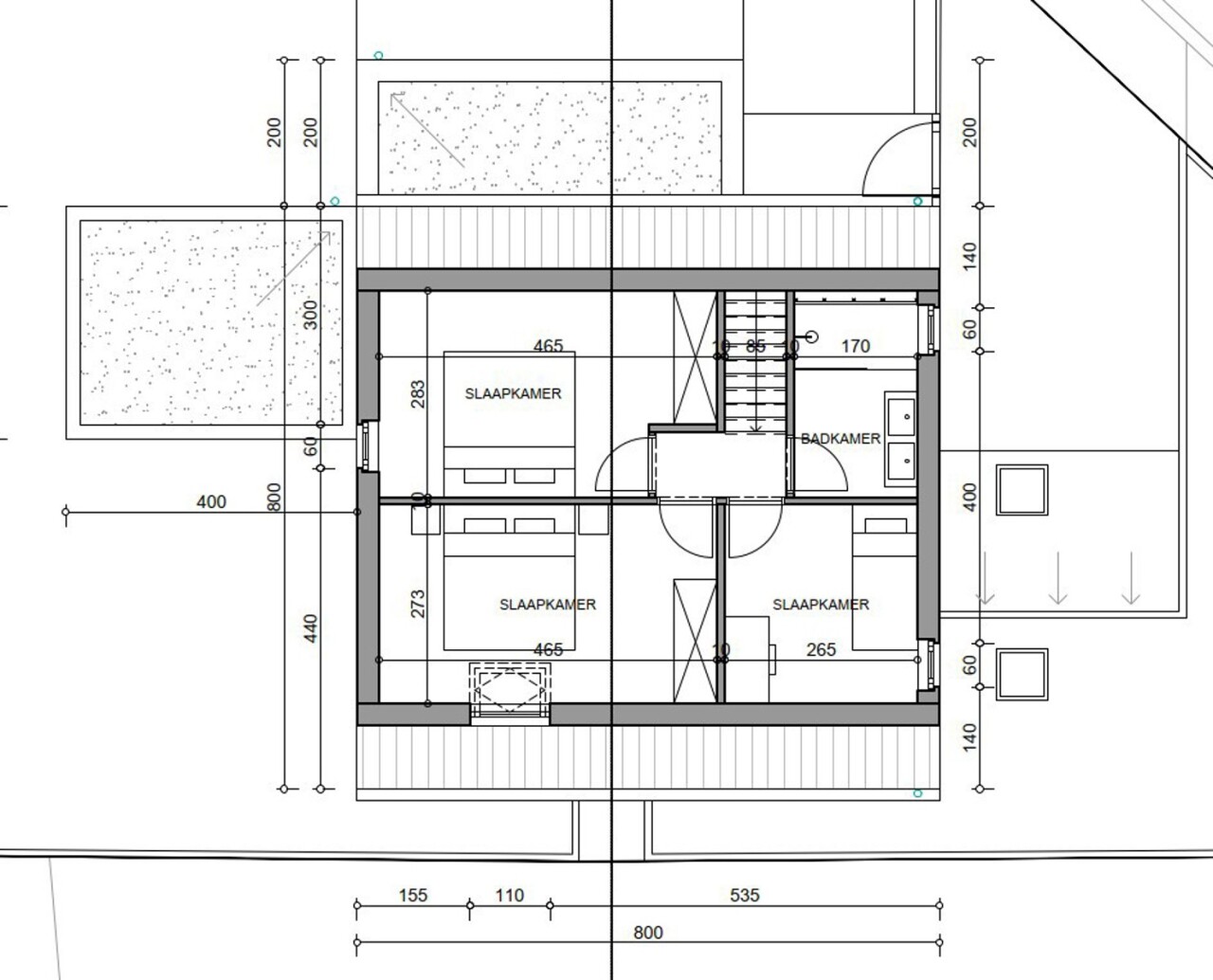
De keuken is voorzien van alle nodige toestellen: een vaatwasser, spoelbak, inductiekookplaat, dampkap, koelkast met vriesvak en ruim voldoende kastruimte. Op de eerste verdieping bevinden zich drie slaapkamers en een badkamer uitgerust met een lavabo, een tweede toilet en een comfortabele inloopdouche. Buiten geniet u van een gezellig terras met een onderhoudsvriendelijke tuin, een aangelegde parkeerplaats en een handige fietsberging.

Extra:
CV op gas met HR-ketel– conforme elektrische installatie.
EPC: 132 kWh/m²/jaar. Overstromingsgevoeligheid:
P-score: klasse A – G-score: klasse A.

Heeft u vragen of wenst u meer informatie? Aarzel dan niet om ons te contacteren, wij helpen u graag verder.


Uw vastgoedmakelaar

Seb De Preter 0470 01 40 59
contact

Details van het pand

Financieel

Prijs
€ 385.000,00
Beschikbaarheid
Vanaf akte

Ligging

School nabij
Ja
Winkels nabij
Ja
Openbaar vervoer nabij
Ja
Autosnelweg nabij
Ja
Sportcentrum nabij
Ja

Gebouw

Bewoonbare oppervlakte
125,00 m²
Aantal gevels
4
Renovatiejaar
2026
Staat
Hernieuwd

Terrein

Grondoppervlakte
341,00 m²
Tuin
Ja

Parkeermogelijkheden

Parkings buiten
2

Indeling

Woonkamer
25,00 m²
Keuken
5,00 m², geïnstalleerd
Bureau
10,00 m²
Slaapkamer 1
7,00 m²
Slaapkamer 2
12,00 m²
Slaapkamer 3
13,00 m²
Badkamer type
Douche
Toiletten
2
Wasplaats
Ja
Kelder
Nee
Zolder
Nee

Comfort

Lift
Nee
Zwembad
Nee

Energie

EPC
132 kWh/m²/jaar
Dubbele beglazing
Ja
Elektriciteitskeuring
Ja, conform
Type verwarming
Gas cv

Technieken

Elektriciteit
Ja
Telefoonbekabeling
Ja
Kabeltelevisie
Ja
Riolering
Ja
Gas
Ja
Water
Ja

Stedenbouw

Bestemming
Woongebied
Bouwvergunning
Ja
Verkavelingsvergunning
Nee
Voorkooprecht
Nee
Asbestinventarisattest
Ja
Dagvaarding
Nee - geen rechterlijke herstelmaatregel of bestuurlijke maatregel opgelegd
O-peil
Niet gelegen in een overstromingsgevoelig gebied
G-score
A
P-score
A
Watergevoelig openruimtegebied
Nee
Vonnissen
Nee
Servitude
Nee

Meer info over deze eigendom

Bedankt voor je bericht, we contacteren je zo spoedig mogelijk.
Er was een probleem bij het versturen van het formulier, gelieve opnieuw te proberen.
(*) Gelieve de verplichte velden in te vullen.